МИНИСТЕРСТВО НАУКИ И ВЫСШЕГО ОБРАЗОВАНИЯ РОССИЙСКОЙ ФЕДЕРАЦИИ
Федеральное государственное автономное образовательное
учреждение высшего образования
«Крымский Федеральный Университет им. В.И. Вернадского»
(ФГАОУ ВО «КФУ им. В. И. Вернадского»)
Бахчисарайский колледж строительства,
архитектуры и дизайна (филиал)
ФГАОУ ВО «КФУ им. В.И. Вернадского»
Утверждаю
Зам. директора по учебно-методической работе
___________Д.И. Подокшина
«______» ___________2025 г.
Фонд оценочных средств для промежуточной аттестации по
УП.01.02 Проектирование систем газораспределения и газопотребления
специальность 08.02.08 Монтаж и эксплуатация оборудования и систем газоснабжения
форма обучения: очная/заочная
2025 г.
Фонд оценочных средств разработан на основе Федерального государственного образовательного стандарта по специальности среднего профессионального образования 08.02.08 Монтаж и эксплуатация оборудования и систем газоснабжения, утвержденного приказом Министерства образования и науки Российской Федерации от 18 июня 2024 года № 418 (зарегистрирован Министерством юстиции Российской Федерации 19 июля 2024 г., регистрационный №78867)
Организация-разработчик: Бахчисарайский колледж строительства,
архитектуры и дизайна (филиал) ФГАОУ ВО «КФУ им. В.И. Вернадского»
Разработчик: Паньковский А.В., преподаватель высшей квалификационной категории, Бахчисарайского колледжа строительства, архитектуры и дизайна
Фонд оценочных средств рекомендован цикловой методической комиссией №4 Дисциплин профессионального цикла по специальности 08.02.08 Монтаж и эксплуатация оборудования и систем газоснабжения
от «_____»_______________2025 г. протокол № ____
Председатель ЦМК _________________ Д.И. Подокшина
СОДЕРЖАНИЕ
1. Паспорт фонда оценочных средств…………………………………………..4
2. Результаты освоения, подлежащие проверке ...............................................6
3. Оценочные средства промежуточной аттестации ………………………….9
4. Приложение…………………………………………………………………...10
1. Паспорт фонда оценочных средств
В результате прохождения УП.01.02 Проектирование систем газораспределения и газопотребления обучающийся должен обладать предусмотренными ФГОС по специальности 08.02.08 Монтаж и эксплуатация оборудования и систем газоснабжения следующими общими и профессиональными компетенциями:
1. общие (ОК) компетенции:
|
Код |
Наименование результата обучения |
|
ОК 01 |
Выбирать способы решения задач профессиональной деятельности применительно к различным контекстам. |
|
ОК 02. |
Использовать современные средства поиска, анализа и интерпретации информации и информационные технологии для выполнения задач профессиональной деятельности. |
|
ОК 03. |
Планировать и реализовывать собственное профессиональное и личностное развитие, предпринимательскую деятельность в профессиональной сфере, использовать знания по правовой и финансовой грамотности в различных жизненных ситуациях. |
|
ОК 04. |
Эффективно взаимодействовать и работать в коллективе и команде. |
|
ОК 09. |
Пользоваться профессиональной документацией на государственном и иностранном языках. |
2. профессиональные (ПК) компетенции:
|
Код |
Наименование результата обучения |
|
ПК 1.1. |
Разрабатывать рабочую документацию элементов и узлов систем газоснабжения (сетей газораспределения и газопотребления). |
|
ПК 1.2. |
Подготавливать к выпуску рабочую документацию элементов и узлов и узлов систем газоснабжения (сетей газораспределения и газопотребления). |
|
ПК 1.3. |
Создавать элементы и узлы системы газоснабжения (сетей газораспределения и газопотребления) в качестве компонентов для информационной модели объекта. |
В результате освоения учебной практики обучающийся должен достигнуть личностных результатов:
|
Личностные результаты реализации программы воспитания (дескрипторы) |
Код личностных результатов реализации программы воспитания |
|
Личностные результаты реализации программы воспитания, определенные отраслевыми требованиями к деловым качествам личности |
|
|
Способный при взаимодействии с другими людьми достигать поставленных целей, стремящийся к формированию в газовой отрасли и системе жилищно-коммунального хозяйства личностного роста как профессионала |
ЛР13 |
|
Способный ставить перед собой цели под для решения возникающих профессиональных задач, подбирать способы решения и средства развития, в том числе с использованием информационных технологий |
ЛР14 |
|
Содействующий формированию положительного образа и поддержанию престижа своей специальности |
ЛР15 |
|
Способный искать и находить необходимую информацию используя разнообразные технологии ее поиска, для решения возникающих в процессе производственной деятельности проблем при обслуживании систем газораспределения и газопотребления и системе жилищно-коммунального хозяйства |
ЛР 16 |
|
Способный выдвигать альтернативные варианты действий с целью выработки новых оптимальных алгоритмов; позиционирующий себя в сети как результативный и привлекательный участник трудовых отношений |
ЛР 17 |
В результате прохождения практики обучающийся должен:
иметь навыки/практический опыт:
- разработка чертежей вспомогательных строительных конструкций для установки и крепления элементов системы газоснабжения (сетей газораспределения и газопотребления);
- разработка основного комплекта рабочих чертежей элементов системы газоснабжения (сетей газораспределения и газопотребления);
- разработка эскизных и габаритных чертежей общих видов нетиповых изделий и газоиспользующего оборудования;
- проверка текстовой и графической части рабочей документации системы газоснабжения (сетей газораспределения и газопотребления) на соответствие утвержденным проектным решениям проектной документации;
- подготовка комплекта рабочей документации системы газоснабжения, включая ссылочные и прилагаемые документы;
- оформление рабочей документации системы газоснабжения
- (сетей газораспределения и газопотребления) в электронной и (или) бумажной форме;
- сбор исходных данных для создания элементов системы газоснабжения (сетей газораспределения и газопотребления) в качестве компонентов для информационной модели;
- создание элементов системы газоснабжения (сетей газораспределения и газопотребления) в качестве компонентов информационной модели;
- создание узлов и конструкций системы газоснабжения (сетей газораспределения и газопотребления) в качестве компонентов информационной модели;
- детализация информационной модели системы газоснабжения (сетей газораспределения и газопотребления);
- доработка комплекта рабочих чертежей на основании детализированной информационной модели.
В результате освоения учебной практики обучающийся должен уметь:
- выбирать необходимые требования к изготовлению и монтажу вспомогательных строительных конструкций в соответствии с нормативно-технической документацией и нормативными правовыми актами;
- выбирать алгоритм разработки и оформления комплекта рабочих чертежей в соответствии с требованиями нормативно-технической документации и нормативных правовых актов;
- выбирать алгоритм разработки и оформления эскизных и габаритных чертежей в составе комплекта рабочей документации системы газоснабжения (сетей газораспределения и газопотребления) в соответствии с требованиями нормативно-технической документации и нормативных правовых актов;
- выбирать технологии информационного моделирования при решении специализированных задач;
- выбирать способы и алгоритм работы в системе автоматизированного проектирования (далее - САПР) для оформления чертежей элементов системы газоснабжения (сетей газораспределения и газопотребления) и составления спецификаций;
- применять требования нормативно-технической документации и нормативных правовых актов при составлении и оформлении рабочей документации системы газоснабжения;
- оценивать соответствие рабочей документации принятым проектным решениям проектной документации;
- читать чертежи графической части проектной документации системы газоснабжения (сетей газораспределения и газопотребления);
- применять требования нормативно-технической документации и нормативных правовых актов при комплектовании и оформлении рабочей документации;
- выбирать алгоритм работы с внешними периферийными устройствами при комплектовании чертежей рабочей документации системы газоснабжения (сетей газораспределения и газопотребления);
- определять порядок подготовки к выпуску рабочей документации системы газоснабжения (сетей газораспределения и газопотребления) в соответствии с требованиями нормативно- технической документации и нормативных правовых актов;
- выбирать технологии информационного моделирования при решении специализированных задач систем газоснабжения (сетей газораспределения и газопотребления);
- определять перечень необходимых исходных данных для создания системы газоснабжения (сетей газораспределения и газопотребления) и ее элементов в качестве компонентов для информационной модели;
- выбирать алгоритм и способы создания системы газоснабжения (сетей газораспределения и газопотребления) и типовых узлов в
- качестве компонентов для информационной модели в соответствии с требованиями нормативно-технической документации и нормативных правовых актов;
- определять необходимые требования к изготовлению и монтажу, контролю установки элементов системы газоснабжения (сетей газораспределения и газопотребления) при создании компонентов информационной модели;
- выбирать алгоритм и способы работы при помощи программных средств в процессе информационного моделирования;
- выбирать способы создания компонентов информационной модели на основе системы газоснабжения (сетей газораспределения и газопотребления) в соответствии с заданным уровнем детализации;
- читать чертежи графической части проектной документации;
- выбирать способы и алгоритм работы в системах автоматизированного проектирования для создания и оформления чертежей элементов системы газоснабжения (сетей газораспределения и газопотребления);
- выбирать технологии информационного моделирования при решении специализированных задач систем газоснабжения (сетей газораспределения и газопотребления).
2. Результаты освоения учебной практики, подлежащие проверке
|
Результаты обучения (личностные результаты, освоенные умения, навыки/практический опыт)* |
ПК, ОК
|
Наименование темы
|
Наименование оценочного средства
|
|
|
Текущий контроль знаний |
Промежуточная аттестация |
|||
|
1 |
2 |
3 |
4 |
|
|
ЛР13-17 иметь навыки/практический опыт: - разработка чертежей вспомогательных строительных конструкций для установки и крепления элементов системы газоснабжения (сетей газораспределения и газопотребления); - разработка основного комплекта рабочих чертежей элементов системы газоснабжения (сетей газораспределения и газопотребления); - разработка эскизных и габаритных чертежей общих видов нетиповых изделий и газоиспользующего оборудования; - проверка текстовой и графической части рабочей документации системы газоснабжения (сетей газораспределения и газопотребления) на соответствие утвержденным проектным решениям проектной документации; - подготовка комплекта рабочей документации системы газоснабжения, включая ссылочные и прилагаемые документы; - оформление рабочей документации системы газоснабжения - (сетей газораспределения и газопотребления) в электронной и (или) бумажной форме; - сбор исходных данных для создания элементов системы газоснабжения (сетей газораспределения и газопотребления) в качестве компонентов для информационной модели; - создание элементов системы газоснабжения (сетей газораспределения и газопотребления) в качестве компонентов информационной модели; - создание узлов и конструкций системы газоснабжения (сетей газораспределения и газопотребления) в качестве компонентов информационной модели; - детализация информационной модели системы газоснабжения (сетей газораспределения и газопотребления); - доработка комплекта рабочих чертежей на основании детализированной информационной модели. уметь: - выбирать необходимые требования к изготовлению и монтажу вспомогательных строительных конструкций в соответствии с нормативно-технической документацией и нормативными правовыми актами; - выбирать алгоритм разработки и оформления комплекта рабочих чертежей в соответствии с требованиями нормативно-технической документации и нормативных правовых актов; - выбирать алгоритм разработки и оформления эскизных и габаритных чертежей в составе комплекта рабочей документации системы газоснабжения (сетей газораспределения и газопотребления) в соответствии с требованиями нормативно-технической документации и нормативных правовых актов; - выбирать технологии информационного моделирования при решении специализированных задач; - выбирать способы и алгоритм работы в системе автоматизированного проектирования (далее - САПР) для оформления чертежей элементов системы газоснабжения (сетей газораспределения и газопотребления) и составления спецификаций; - применять требования нормативно-технической документации и нормативных правовых актов при составлении и оформлении рабочей документации системы газоснабжения; - оценивать соответствие рабочей документации принятым проектным решениям проектной документации; - читать чертежи графической части проектной документации системы газоснабжения (сетей газораспределения и газопотребления); - применять требования нормативно-технической документации и нормативных правовых актов при комплектовании и оформлении рабочей документации; - выбирать алгоритм работы с внешними периферийными устройствами при комплектовании чертежей рабочей документации системы газоснабжения (сетей газораспределения и газопотребления); - определять порядок подготовки к выпуску рабочей документации системы газоснабжения (сетей газораспределения и газопотребления) в соответствии с требованиями нормативно- технической документации и нормативных правовых актов; - выбирать технологии информационного моделирования при решении специализированных задач систем газоснабжения (сетей газораспределения и газопотребления); - определять перечень необходимых исходных данных для создания системы газоснабжения (сетей газораспределения и газопотребления) и ее элементов в качестве компонентов для информационной модели; - выбирать алгоритм и способы создания системы газоснабжения (сетей газораспределения и газопотребления) и типовых узлов в - качестве компонентов для информационной модели в соответствии с требованиями нормативно-технической документации и нормативных правовых актов; - определять необходимые требования к изготовлению и монтажу, контролю установки элементов системы газоснабжения (сетей газораспределения и газопотребления) при создании компонентов информационной модели; - выбирать алгоритм и способы работы при помощи программных средств в процессе информационного моделирования; - выбирать способы создания компонентов информационной модели на основе системы газоснабжения (сетей газораспределения и газопотребления) в соответствии с заданным уровнем детализации; - читать чертежи графической части проектной документации; - выбирать способы и алгоритм работы в системах автоматизированного проектирования для создания и оформления чертежей элементов системы газоснабжения (сетей газораспределения и газопотребления); - выбирать технологии информационного моделирования при решении специализированных задач систем газоснабжения (сетей газораспределения и газопотребления).
|
ОК 01, ОК 02, ОК 03, ОК 04, ОК 09, ПК 1.1, ПК 1.2, ПК 1.3
|
Практическая работа № 1. Инструктаж по технике безопасности. Выдача задания для практики. Инсталляция программного обеспечения. Настройка рабочей среды в САПР NanoCAD. |
Задание на практическую работу |
Темы индивидуальных заданий. Вопросы к дифференцирован-ному зачету |
|
Практическая работа № 2. Ситуационный план микрорайона. |
Задание на практическую работу |
|
||
|
Практическая работа № 3. Ситуационный план квартала. Генплан квартала. |
Задание на практическую работу |
|
||
|
Практическая работа № 4. Расчетная схема тупиковой сети среднего давления. Расчетная схема кольцевой сети низкого давления. |
Задание на практическую работу |
|
||
|
Практическая работа № 5. Схема ГРП. Условные обозначения, экспликация здания, спецификация материалов и оборудования. |
Задание на практическую работу |
|
||
|
Практическая работа № 6. Построение плана этажа здания. |
Задание на практическую работу |
|
||
|
Практическая работа № 7. Построение фасад, разрез здания. |
Задание на практическую работу |
|
||
|
Практическая работа № 8. Аксонометрическая схема внутридомового газопровода. Разрез ДВК. |
Задание на практическую работу |
|
||
|
Практическая работа № 9. План кухни, разрез кухни. |
Задание на практическую работу |
|
||
|
Практическая работа №10. Ввод газопровода в здание. Присоединение ПГ. Присоединение ВПГ к ДК. |
|
|
||
|
Практическая работа № 11. Спецификация материалов и оборудование на весь дом. Формирование листов. |
|
|
||
|
|
Практическая работа № 12. Подготовка к печати. Оформление дневника-отчёта. |
|
|
|
3. Оценочные средства промежуточной аттестации
Данный раздел содержит материалы оценочных средств в соответствии с таблицей раздела 2.
Оценочные средства промежуточной аттестации состоят из:
- тем для индивидуального задания;
- заданий для практических работ;
- вопросов для дифференцированного зачета;
- критерии формирования оценок.
Приложение
Темы индивидуальных заданий для обучающихся
1. Системы автоматизированного проектирования в газовой отрасли.
2. Нормативно-техническая документация по проектированию систем газоснабжения.
3. Чтение чертежей рабочих проектов. Общие требования к оформлению документации.
4. Оформление расчета систем газораспределения и газопотребления.
5. Проектирование элементов систем газораспределения и газопотребления в САПР NanoCAD.
6. Составление и заполнение спецификации материалов и оборудования системы газораспределения и газопотребления в соответствии с Государственными стандартами и техническими условиями в САПР NanoCad.
7. Проектирование и подбор оборудования газорегуляторных пунктов с использованием компьютера.
8. Интерфейс NanoCAD, его основные элементы.
9. Режимы рисования и настройка рабочей среды NanoCAD.
10. Работа со слоями в NanoCAD.
11. Выполнение надписей на чертежах в NanoCAD.
12. Состав проектов и требования к проектированию систем газораспределения и газопотребления, требования к содержанию проектной документации.
13. Оформление графической части проектов. Общие требования к оформлению графической части проектов.
14. Гидравлический расчёт газопровода.
15. Трубы, арматура, детали газопроводов.
16. Построение генерального плана.
17. Ситуационный план микрорайона.
18. Требования к формированию схем. Требования к нанесению надписей к объектам сетей газораспределения.
19. Требования к оформлению технологических схем сетей газораспределения и газопотребления.
20. Рабочие чертежи наружных газопроводов. Рекомендуемые масштабы изображений на чертежах.
21. Продольные профили газопроводов.
22. Рабочие чертежи внутренних газопроводов.
23. Планы этажей. Проектирование газопроводов и оборудования на планах этажей.
24. Проектирование инженерных сетей газоснабжения.
25. Построение развернутого плана газопровода.
26. Аксонометрическая схема внутренних газопроводов гражданских, промышленных и сельскохозяйственных объектов.
27. Установка газовых приборов.
28. Подбор оборудования для газорегуляторного пункта.
29. Типовые и индивидуальные проекты газоснабжения жилых домов и общественных зданий.
30. Газоиспользующее оборудование жилых домов.
31. Прокладка газопроводов промышленных объектов.
32. Установка газопотребляющего оборудования промышленных объектов.
33. Автоматизированная система управления технологическими процессами распределения газа (АСУ, ТП, РГ).
34. Запорная и регулирующая арматура, предохранительные устройства.
35. Конструктивные элементы газопроводов.
Вопросы для дифференцированного зачёта
при защите дневника-отчёта по учебной практике
1. Интерфейс NanoCAD, его основные элементы
2. Режимы рисования и настройка рабочей среды NanoCAD
3. Охарактеризуйте кнопки на панели состояния.
4. Построение двухмерных объектов: абсолютные и относительные значения координат; типы двухмерных координат (декартовы и полярные).
5. Основные графические примитивы системы NanoCAD.
6. Основные команды черчения системы NanoCAD.
7. Основные команды редактирования системы NanoCAD.
8. Понятие блока свойства блока. Где в чертеже был использован блок?
9. Штриховка, особенности работы со штриховкой.
10. Градиент, особенности работы с градиентом.
11. Особенности работы с размерами в системе NanoCAD.
12. Простановка размеров: типы размеров и их особенности. Редактирование размеров.
13. Создание и редактирование размерных стилей.
14. Пространство модели и пространство листа в NanoCAD
15. Динамический ввод в NanoCAD
16. Командная строка в NanoCAD
17. Видовые экраны, основные принципы и особенности организации работы с ними.
18. Назначение слоев. Работа со слоями в NanoCAD.
19. Свойства слоя. Какие слои использовали (название и свойства)?
20. Работа с текстом в NanoCAD
21. Аннотативный масштаб в NanoCAD.
22. Охарактеризуйте инструмент мультивыноска. Где были использованы мультивыноски?
23. Особенности построения таблиц в NanoCAD, где были использованы в чертежах таблицы?
24. Подготовка чертежа к выводу на бумагу.
25. Как правильно сохранить чертёж для печати на плоттере на различные форматы листа (А4,А3,А2,А1).
26. Дать понятия план, виды планов на чертежах.
27. Дать понятия разрез здания. Виды разрезов.
28. Дать понятия фасад. Виды фасадов.
29. Особенности построения генеральных планов.
30. Для чего необходим ситуационный план микрорайона и квартала?
31. Типы газовых сетей, охарактеризуйте, каждую.
32. Дать определение РОК, ГРП, ГРС.
33. Для чего построена роза ветров, какие инструменты использовались?
34. Какое газовое оборудование выло выбрано и использовано на чертежах?
35. Как внедрить изображение в NanoCAD?
Задания для практических работ Задания для 1 листа.
![]() |

Затем выполняет следующую работу:
Расчетная схема тупиковой сети среднего давления. Расчетная схема кольцевой сети низкого давления.
Схема ГРП. Условные обозначения, экспликация здания, спецификация материалов и оборудования.
Задания для 2 листа.
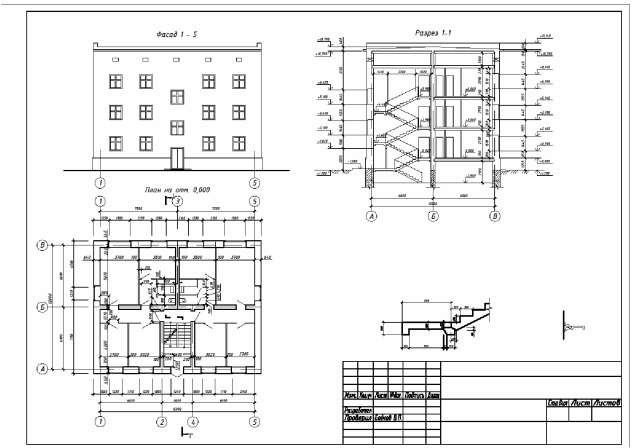
Обучающийся выполняет вычерчивание двух видов модели (план этажа, фасад) и необходимого разреза, необходимого при выполнении курсового проекта
![]() |
Затем выполняет следующую работу:
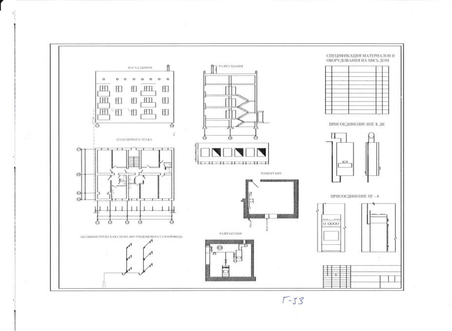
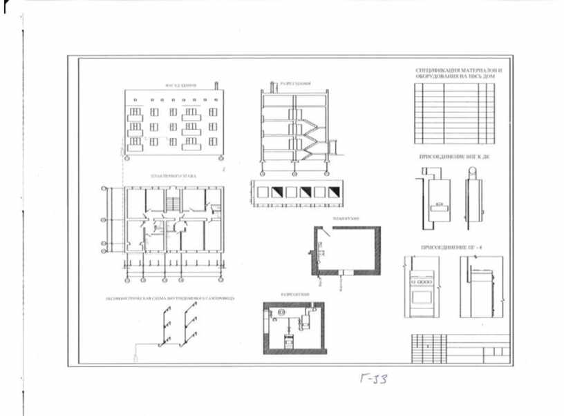
Аксонометрическая схема внутридомового газопровода. Разрез. ДВК. План кухни, разрез кухни.
Ввод газопровода в здание. Присоединение ПГ. Присоединение ВПГ к ДК.
Спецификация материалов и оборудование на весь дом. Формирование листов.
Примерный результат выполненной работы по практике
![]() |

МИНИСТЕРСТВО НАУКИ И ВЫСШЕГО ОБРАЗОВАНИЯ РОССИЙСКОЙ ФЕДЕРАЦИИ
Федеральное государственное автономное образовательное
учреждение высшего образования
«Крымский федеральный университет имени В.И. Вернадского»
(ФГАОУ ВО «КФУ им. В.И. Вернадского»)
Бахчисарайский колледж строительства, архитектуры и дизайна (филиал)
ФГАОУ ВО «КФУ им. В.И. Вернадского»
ДНЕВНИК-ОТЧЁТ
По УП.01.02 Проектирование систем газораспределения и газопотребления
обучающегося ____________________________________________________
(фамилия, имя, отчество)
Специальность 08.02.08 Монтаж и эксплуатация оборудования и систем газоснабжения
Курс______ Группа____________ Форма обучения_______________________
Руководитель практики
от колледжа __________ _____________________________________
(подпись) (должность, ФИО)
Отчет защищен с оценкой ______________________________________________
20___ г.
ЦЕЛИ И ЗАДАЧИ УЧЕБНОЙ ПРАКТИКИ
Цели: приобрести практический опыт при построении конструкторских чертежей в NanoCAD.
В результате освоения учебной практики обучающийся должен достигнуть личностных результатов:
|
Личностные результаты реализации программы воспитания (дескрипторы) |
Код личностных результатов реализации программы воспитания |
|
Личностные результаты реализации программы воспитания, определенные отраслевыми требованиями к деловым качествам личности |
|
|
Способный при взаимодействии с другими людьми достигать поставленных целей, стремящийся к формированию в газовой отрасли и системе жилищно-коммунального хозяйства личностного роста как профессионала |
ЛР13 |
|
Способный ставить перед собой цели под для решения возникающих профессиональных задач, подбирать способы решения и средства развития, в том числе с использованием информационных технологий |
ЛР14 |
|
Содействующий формированию положительного образа и поддержанию престижа своей специальности |
ЛР15 |
|
Способный искать и находить необходимую информацию используя разнообразные технологии ее поиска, для решения возникающих в процессе производственной деятельности проблем при обслуживании систем газораспределения и газопотребления и системе жилищно-коммунального хозяйства |
ЛР 16 |
|
Способный выдвигать альтернативные варианты действий с целью выработки новых оптимальных алгоритмов; позиционирующий себя в сети как результативный и привлекательный участник трудовых отношений |
ЛР 17 |
В результате освоения учебной практики обучающийся должен:
иметь навыки/практический опыт:
- разработка чертежей вспомогательных строительных конструкций для установки и крепления элементов системы газоснабжения (сетей газораспределения и газопотребления);
- разработка основного комплекта рабочих чертежей элементов системы газоснабжения (сетей газораспределения и газопотребления);
- разработка эскизных и габаритных чертежей общих видов нетиповых изделий и газоиспользующего оборудования;
- проверка текстовой и графической части рабочей документации системы газоснабжения (сетей газораспределения и газопотребления) на соответствие утвержденным проектным решениям проектной документации;
- подготовка комплекта рабочей документации системы газоснабжения, включая ссылочные и прилагаемые документы;
- оформление рабочей документации системы газоснабжения
- (сетей газораспределения и газопотребления) в электронной и (или) бумажной форме;
- сбор исходных данных для создания элементов системы газоснабжения (сетей газораспределения и газопотребления) в качестве компонентов для информационной модели;
- создание элементов системы газоснабжения (сетей газораспределения и газопотребления) в качестве компонентов информационной модели;
- создание узлов и конструкций системы газоснабжения (сетей газораспределения и газопотребления) в качестве компонентов информационной модели;
- детализация информационной модели системы газоснабжения (сетей газораспределения и газопотребления);
- доработка комплекта рабочих чертежей на основании детализированной информационной модели.
уметь:
- выбирать необходимые требования к изготовлению и монтажу вспомогательных строительных конструкций в соответствии с нормативно-технической документацией и нормативными правовыми актами;
- выбирать алгоритм разработки и оформления комплекта рабочих чертежей в соответствии с требованиями нормативно-технической документации и нормативных правовых актов;
- выбирать алгоритм разработки и оформления эскизных и габаритных чертежей в составе комплекта рабочей документации системы газоснабжения (сетей газораспределения и газопотребления) в соответствии с требованиями нормативно-технической документации и нормативных правовых актов;
- выбирать технологии информационного моделирования при решении специализированных задач;
- выбирать способы и алгоритм работы в системе автоматизированного проектирования (далее - САПР) для оформления чертежей элементов системы газоснабжения (сетей газораспределения и газопотребления) и составления спецификаций;
- применять требования нормативно-технической документации и нормативных правовых актов при составлении и оформлении рабочей документации системы газоснабжения;
- оценивать соответствие рабочей документации принятым проектным решениям проектной документации;
- читать чертежи графической части проектной документации системы газоснабжения (сетей газораспределения и газопотребления);
- применять требования нормативно-технической документации и нормативных правовых актов при комплектовании и оформлении рабочей документации;
- выбирать алгоритм работы с внешними периферийными устройствами при комплектовании чертежей рабочей документации системы газоснабжения (сетей газораспределения и газопотребления);
- определять порядок подготовки к выпуску рабочей документации системы газоснабжения (сетей газораспределения и газопотребления) в соответствии с требованиями нормативно- технической документации и нормативных правовых актов;
- выбирать технологии информационного моделирования при решении специализированных задач систем газоснабжения (сетей газораспределения и газопотребления);
- определять перечень необходимых исходных данных для создания системы газоснабжения (сетей газораспределения и газопотребления) и ее элементов в качестве компонентов для информационной модели;
- выбирать алгоритм и способы создания системы газоснабжения (сетей газораспределения и газопотребления) и типовых узлов в качестве компонентов для информационной модели в соответствии с требованиями нормативно-технической документации и нормативных правовых актов;
- определять необходимые требования к изготовлению и монтажу, контролю установки элементов системы газоснабжения (сетей газораспределения и газопотребления) при создании компонентов информационной модели;
- выбирать алгоритм и способы работы при помощи программных средств в процессе информационного моделирования;
- выбирать способы создания компонентов информационной модели на основе системы газоснабжения (сетей газораспределения и газопотребления) в соответствии с заданным уровнем детализации;
- читать чертежи графической части проектной документации;
- выбирать способы и алгоритм работы в системах автоматизированного проектирования для создания и оформления чертежей элементов системы газоснабжения (сетей газораспределения и газопотребления);
- выбирать технологии информационного моделирования при решении специализированных задач систем газоснабжения (сетей газораспределения и газопотребления).
Обладать общими компетенциями:
ОК 01. Выбирать способы решения задач профессиональной деятельности применительно к различным контекстам.
ОК 02. Использовать современные средства поиска, анализа и интерпретации информации и информационные технологии для выполнения задач профессиональной деятельности.
ОК 03. Планировать и реализовывать собственное профессиональное и личностное развитие, предпринимательскую деятельность в профессиональной сфере, использовать знания по правовой и финансовой грамотности в различных жизненных ситуациях.
ОК 04. Эффективно взаимодействовать и работать в коллективе и команде.
ОК 09. Пользоваться профессиональной документацией на государственном и иностранных языках.
Обладать профессиональными компетенциями:
ПК 1.1. Разрабатывать рабочую документацию элементов и узлов систем газоснабжения (сетей газораспределения и газопотребления).
ПК 1.2. Подготавливать к выпуску рабочую документацию элементов и узлов и узлов систем газоснабжения (сетей газораспределения и газопотребления).
ПК 1.3. Создавать элементы и узлы системы газоснабжения (сетей газораспределения и газопотребления) в качестве компонентов для информационной модели объекта.
ОБЩИЕ РЕКОМЕНДАЦИИ РУКОВОДИТЕЛЮ ПО ОРГАНИЗАЦИИ УЧЕБНОЙ ПРАКТИКИ
Практика УП.01.02 Проектирование систем газораспределения и газопотребления предусмотрена учебным планом, является учебной, и проводиться в течение двух недель в V семестре для очной, а в IV семестре – для заочной формы обучения. Программой практики установлена обязательная нагрузка на студента в объеме 72 часа, из которых все 72 часа выделяются для аудиторной практической работы под руководством преподавателя.
Руководство практикой осуществляет преподаватель, отвечающий за общую подготовку и организацию практики. До начала практики проводится установочная лекция, в ходе которой студенты знакомятся с содержанием, задачами и порядком прохождения практики.
За время проведения учебной практики обучающиеся выполняют практические работ по основной теме: «Раздел 1. Выполнение чертежей с использованием САПР NanoCAD по заданию». Практика завершается заполнением дневника по практике и сдачей распечатанных на бумаге формата А4 и А3 выполненных работ по практическим работам. Отчет включает в себя: дневник-отчёт практики и приложение (чертежи).
Форма итогового контроля – дифференцированный зачет.
ОБЯЗАННОСТИ СТУДЕНТОВ ПРИ ПРОХОЖДЕНИИ ПРАКТИКИ
ü Своевременно прибывать на практику.
ü В полном объеме выполнять указания руководителя и все задания, предусмотренные программой практики.
ü Выучить и строго придерживаться правил по охране труда и техники безопасности.
ü Нести ответственность за выполненную работу.
ü Своевременно сдать зачет по практике.
ТЕМАТИЧЕСКИЙ ПЛАН ПРАКТИЧЕСКИХ ЗАНЯТИЙ
|
День прохождения практики |
Название темы |
Кол-во времени |
|
|
Инструктаж по технике безопасности. Выдача задания для практики. Практическая работа № 1. Инсталляция программного обеспечения. Настройка рабочей среды в САПР NanoCAD. |
6 |
|
|
Практическая работа № 2. Ситуационный план микрорайона. |
6 |
|
|
Практическая работа № 3. Ситуационный план квартала. Генплан квартала. |
6 |
|
|
Практическая работа № 4. Расчетная схема тупиковой сети среднего давления. Расчетная схема кольцевой сети низкого давления. |
6 |
|
|
Практическая работа № 5. Схема ГРП. Условные обозначения, экспликация здания, спецификация материалов и оборудования. |
6 |
|
|
Практическая работа № 6. Построение плана этажа здания. |
6 |
|
|
Практическая работа № 7. Построение фасад, разрез здания. |
6 |
|
|
Практическая работа № 8. Аксонометрическая схема внутридомового газопровода. Разрез ДВК. |
6 |
|
|
Практическая работа № 9. План кухни, разрез кухни. |
6 |
|
|
Практическая работа №10. Ввод газопровода в здание. Присоединение ПГ. Присоединение ВПГ к ДК. |
6 |
|
|
Практическая работа № 11. Спецификация материалов и оборудование на весь дом. Формирование листов. |
6 |
|
|
Практическая работа № 12. Подготовка к печати. Оформление дневника-отчёта. |
6 |
|
Всего: |
|
72 |
КАЛЕНДАРНЫЙ ГРАФИК ПРОХОЖДЕНИЯ ПРАКТИКИ
|
№ п/п |
Название работы, ее поэтапное выполнение |
День прохождения практики |
Отметка о выполнении |
|
|
|
|
|
|
|
|
|
|
|
|
|
|
|
|
|
|
|
|
|
|
|
|
|
|
|
|
|
|
|
|
|
|
|
|
|
|
|
|
|
|
|
|
|
|
|
|
|
|
|
|
|
|
|
|
|
|
|
|
|
|
|
|
|
|
|
|
|
|
|
|
|
|
|
|
|
|
|
|
|
|
|
|
|
|
|
|
|
|
|
|
|
|
|
|
|
|
|
|
|
|
|
|
|
|
|
|
|
|
|
|
|
|
|
|
|
|
|
|
|
|
|
|
|
|
|
|
|
|
Руководитель практики ____________________ / ____________________ /
Контроль и оценка результатов освоения учебной практики осуществляется преподавателем в ходе проверки результатов выполнения заданий по учебной практике, подготовленных отчетов и заполненных дневников.
|
Результаты обучения (иметь навыки/практический опыт в, освоенные умения) |
Основные показатели оценки результата |
|
Иметь навыки/практический опыт: |
|
|
- разработка чертежей вспомогательных строительных конструкций для установки и крепления элементов системы газоснабжения (сетей газораспределения и газопотребления); - разработка основного комплекта рабочих чертежей элементов системы газоснабжения (сетей газораспределения и газопотребления); - разработка эскизных и габаритных чертежей общих видов нетиповых изделий и газоиспользующего оборудования; - проверка текстовой и графической части рабочей документации системы газоснабжения (сетей газораспределения и газопотребления) на соответствие утвержденным проектным решениям проектной документации; - подготовка комплекта рабочей документации системы газоснабжения, включая ссылочные и прилагаемые документы; - оформление рабочей документации системы газоснабжения - (сетей газораспределения и газопотребления) в электронной и (или) бумажной форме; - сбор исходных данных для создания элементов системы газоснабжения (сетей газораспределения и газопотребления) в качестве компонентов для информационной модели; - создание элементов системы газоснабжения (сетей газораспределения и газопотребления) в качестве компонентов информационной модели; - создание узлов и конструкций системы газоснабжения (сетей газораспределения и газопотребления) в качестве компонентов информационной модели; - детализация информационной модели системы газоснабжения (сетей газораспределения и газопотребления); доработка комплекта рабочих чертежей на основании детализированной информационной модели. |
Оценка выполнения практических работ и их защита |
|
Умения: |
|
|
- выбирать необходимые требования к изготовлению и монтажу вспомогательных строительных конструкций в соответствии с нормативно-технической документацией и нормативными правовыми актами; - выбирать алгоритм разработки и оформления комплекта рабочих чертежей в соответствии с требованиями нормативно-технической документации и нормативных правовых актов; - выбирать алгоритм разработки и оформления эскизных и габаритных чертежей в составе комплекта рабочей документации системы газоснабжения (сетей газораспределения и газопотребления) в соответствии с требованиями нормативно-технической документации и нормативных правовых актов; - выбирать технологии информационного моделирования при решении специализированных задач; - выбирать способы и алгоритм работы в системе автоматизированного проектирования (далее - САПР) для оформления чертежей элементов системы газоснабжения (сетей газораспределения и газопотребления) и составления спецификаций; - применять требования нормативно-технической документации и нормативных правовых актов при составлении и оформлении рабочей документации системы газоснабжения; - оценивать соответствие рабочей документации принятым проектным решениям проектной документации; - читать чертежи графической части проектной документации системы газоснабжения (сетей газораспределения и газопотребления); - применять требования нормативно-технической документации и нормативных правовых актов при комплектовании и оформлении рабочей документации; - выбирать алгоритм работы с внешними периферийными устройствами при комплектовании чертежей рабочей документации системы газоснабжения (сетей газораспределения и газопотребления); - определять порядок подготовки к выпуску рабочей документации системы газоснабжения (сетей газораспределения и газопотребления) в соответствии с требованиями нормативно- технической документации и нормативных правовых актов; - выбирать технологии информационного моделирования при решении специализированных задач систем газоснабжения (сетей газораспределения и газопотребления); - определять перечень необходимых исходных данных для создания системы газоснабжения (сетей газораспределения и газопотребления) и ее элементов в качестве компонентов для информационной модели; - выбирать алгоритм и способы создания системы газоснабжения (сетей газораспределения и газопотребления) и типовых узлов в качестве компонентов для информационной модели в соответствии с требованиями нормативно-технической документации и нормативных правовых актов; - определять необходимые требования к изготовлению и монтажу, контролю установки элементов системы газоснабжения (сетей газораспределения и газопотребления) при создании компонентов информационной модели; выбирать алгоритм и способы работы при помощи программных средств в процессе информационного моделирования; - выбирать способы создания компонентов информационной модели на основе системы газоснабжения (сетей газораспределения и газопотребления) в соответствии с заданным уровнем детализации; читать чертежи графической части проектной документации; - выбирать способы и алгоритм работы в системах автоматизированного проектирования для создания и оформления чертежей элементов системы газоснабжения (сетей газораспределения и газопотребления); выбирать технологии информационного моделирования при решении специализированных задач систем газоснабжения (сетей газораспределения и газопотребления). |
Оценка выполнения практических работ и их защита |
ВЫВОДЫ РУКОВОДИТЕЛЯ ПРАКТИКИ
________________________________________________________________________________________________________________________________________________________________________________________________________________________________________________________________________________
____________________________________________________________________
____________________________________________________________________
Дата сдачи зачёта: «____» _______________ 20___ г.
Оценка: _____________________________________
Руководитель практики ______________ / ____________________ /
Скачано с www.znanio.ru
Материалы на данной страницы взяты из открытых источников либо размещены пользователем в соответствии с договором-офертой сайта. Вы можете сообщить о нарушении.