Презентация открытого урока по дисциплине Инженерная графика для специальности 20.02.02 Защита в чрезвычайных ситуациях. Тема: Изображения - виды, разрезы, сечения.

  • pptx
  • 24.03.2026
Публикация на сайте для учителей

Публикация педагогических разработок

Бесплатное участие. Свидетельство автора сразу.
Мгновенные 10 документов в портфолио.

Иконка файла материала Презентация ОУ по Инженерной графике для специальности 20.02.02 ЗЧС.pptx

ИНЖЕНЕРНАЯ ГРАФИКА

УЧЕБНОЕ ЗАНЯТИЕ

Автор: Селеткова Т. В.
Преподаватель ГБПОУ ПКТС

Изображения?

Требования?

ГОСТ?

ИЗОБРАЖЕНИЯ - ВИДЫ, РАЗРЕЗЫ, СЕЧЕНИЯ

Т Е М А






1

2

Цель учебного занятия:

реализация усвоенных знаний и понятий в практической деятельности обучающихся

АКТУАЛИЗАЦИЯ ЗНАНИЙ
Блиц - опрос
«Изображения - виды, разрезы, сечения»

Общая инструкция:
Внимательно прочитайте высказывание. Если вы согласны с ним,
в соответствующей графе бланка ответов поставьте число «1», если не согласны – число «0».

1. Основные виды на чертеже располагают произвольно, независимо друг
от друга.
2. Изображение на фронтальной плоскости проекций принимается на чертеже в качестве главного.
3. Количество изображений на чертеже должно быть максимально возможным для понимания формы изделия.
4. Вид сверху располагают под главным видом.
5. Линейные размер на чертеже указывают в миллиметрах без обозначения единиц измерений.
6. Вид сбоку располагают слева от главного вида.
7. Справа то главного вида располагают вид слева.
8. Размеры нескольких одинаковых отверстий ставят один раз с указанием количества этих отверстий.
9. Дополнительный вид применяют для увеличения количества основных видов.
10. Вид — изображение обращенной к наблюдателю видимой части поверхности предмета.

АКТУАЛИЗАЦИЯ ЗНАНИЙ
Блиц - опрос
«Изображения - виды, разрезы, сечения»


БЛАНК ОТВЕТОВ
к блиц - опросу
«Изображения - виды, разрезы, сечения»

Фамилия, инициалы ______________________________
Общая инструкция:
1. Если вы согласны с высказыванием, в соответствующей графе бланка ответов поставьте число «1», если не согласны – число «0».
2. При проверке ответов на вопросы блиц - опроса неверный ответ перечеркните крест накрест.








№ п/п

1

2

3

4

5

6

7

8

9

10

Кол-во правильных ответов (проставляется после проверки)

Ответ

АКТУАЛИЗАЦИЯ ЗНАНИЙ
Блиц - опрос
«Изображения - виды, разрезы, сечения»


БЛАНК ОТВЕТОВ
к блиц - опросу
«Изображения - виды, разрезы, сечения»

Фамилия, инициалы ______________________________
Общая инструкция:
1. Если вы согласны с высказыванием, в соответствующей графе бланка ответов поставьте число «1», если не согласны – число «0».
2. При проверке ответов на вопросы блиц - опроса неверный ответ перечеркните крест накрест.








№ п/п

1

2

3

4

5

6

7

8

9

10

Кол-во правильных ответов (проставляется после проверки)

Ответ

0

1

0

1

0

1

0

1

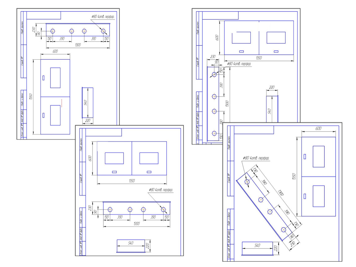
Практическая работа

Пояснение.
Чертеж шкафа пожарного выполнен с нарушением требований ГОСТ2.305-68*: нарушена проекционная связь между изображениями.

Задача.
1. Провести анализ изображений, данных на чертеже: установить какие изображения даны на чертеже.
2. Установить проекционную связь между изображениями.
3. Оформить чертеж в соответствии с ГОСТ 2.104-68*,
ГОСТ 2.301-68*, ГОСТ 2.305-68*, ГОСТ 2.307-68*.
4. Проверить чертеж (сопоставить выполненный чертеж с оригиналом).
5. Устранить выявленные несоответствия, внести изменения в чертеж (при необходимости).
6. Прочитать чертеж.

Шкаф пожарный

Оригинал

Какие трудности встретились
во время выполнения задания,
как вы их преодолевали?

Ваши главные результаты сегодня?

Благодаря чему вам удалось их достичь?



п/п


ФИО


Функции

Кол-во баллов

Общее кол-во баллов

Отметка

Решение графической задачи

Блиц-опрос


(руководитель отделения)

Организация и руководство работой отделения.
Отчет о результатах практической деятельности.

Оформление технической документации.

Контроль времени.
Работа с ГОСТами.


Анализ изображений, корректировка чертежа

Описание конструкции изделия.

ПУТЕВОЙ ЛИСТ

Инструкция по заполнению путевого листа:
1. Путевой лист заполняется «руководителем отделения».
2. Решение графической задачи оценивается по 5-ти бальной шкале: от 1 до 5. Руководитель отделения свою работу не оценивает.
3. В графу блиц-опрос заносится количество правильных ответов из бланка ответов к блиц - опросу.
4. Критерии оценки:
менее 9 баллов – отметка «2»
9-11 баллов – отметка «3»
12-13 баллов – отметка «4»
14-15 баллов – отметка «5»

Скачивание материала доступно только для авторизованных пользователей.