Министерство образования и науки Краснодарского края
Государственное бюджетное профессиональное образовательное учреждение
Краснодарского края
«Армавирский механико – технологический техникум»
Методическое пособие
для проведения
практического занятия
на тему:
«ОСОБЕННОСТИ ВЫПОЛНЕНИЯ ПЛАНОВ. МАСШТАБЫ ВЫПОЛНЕНИЯ ПЛАНОВ И РАЗРЕЗОВ»
по дисциплине: «Инженерная графика»
для студентов 2 курса
спец. 15.02.01, 15.02.05, 19.02.03, 19.02.06, 19.02.08, 19.02.09
очного и заочного отделения
Разработал преподаватель: Е.В. Игнатова
|
|
|
2016
1 ЦЕЛЬ РАБОТЫ:
-знать масштабы выполнения планов и разрезов;
-уметь чертить план здания.
2 ОБЩИЕ СВЕДЕНИЯ ПО ТЕМЕ
2.1 Основная надпись к чертежам

Рисунок 1 – Основная надпись
2.2 Выполнение надписей на чертежах
Шрифтом называется однородное начертание всех букв алфавита и цифр, которое придает им общий характерный облик. Чертежный шрифт должен легко читаться и быть простым в написании (рисунок 2).
На чертежах и других конструкторских документах всех отраслей промышленности и строительства применяют чертежный шрифт, который устанавливает ГОСТ 2.304— 81 (СТ СЭВ,851 —78—СТ СЭВ 855—78). ГОСТ устанавливает следующие размеры шрифта: (1,8); 2,5; 3,5; 5; 7; 10; 14; 20; 28; 40. Применение шрифта размером 1,8 не рекомендуется и допускается только для шрифта типа Б.
Размер шрифта определяется высотой прописных букв в миллиметрах. Высота букв hизмеряется перпендикулярно к основанию строки.
ГОСТом установлены следующие типы шрифта: тип А с наклоном около 75°; тип А без наклона; тип Б с наклоном около 75°; тип Б без наклона.
В учебных заведениях обычно пользуются шрифтом типа Б с наклоном 75°.
Толщина линий шрифта dопределяется в зависимости от типа и высоты шрифта h (размера шрифта).
Расстояние между буквами в словах равно 2 мм, минимальное расстояние между словами равно ширине буквы.
Если в предложении есть знаки препинания, то расстояние между словами определяется расстоянием от знака препинания до первой буквы следующего слова и равно ширине буквы.
Если надпись начинается с прописной буквы, а остальные буквы строчные, то высота строчных букв, кроме букв б, в, д, р, у, ф равна предыдущему размеру шрифта например, если надпись выполняется шрифтом размером 10, то высота строчных букв равна 7 мм.

Рисунок 2 Шрифт чертежный
2.3 Масштабы уменьшения
1:2; 1:2,5; 1:4; 1:5; 1:10; 1:15; 1:20; 1:25; 1:40; 1:50; 1:75; 1:100; 1:200; 1:400; 1:500; 1:800; 1:1000.
2.4 Линии чертежа
Толщины всех типов линий зависят от принятой на чертеже толщины линии видимого контура обозначаемой буквой s и могут выбираться в пределах от 0,5 до 1,4 мм. Выбранные толщины линий должны быть одинаковыми для всех изображений на данном чертеже, выполненных в одном и том же масштабе.


2.5 Особенности выполнения планов
К строительным чертежам относятся чертежи зданий гражданских и промышленных сооружений. Чертежи зданий содержат изображения их фасадов, планов и частей: крыш, междуэтажных перекрытий, фундаментов, стен, колонн, лестничных клеток, металлоконструкций и т.д.
При выполнении строительных чертежей пользуются стандартными условными изображениями элементов данного объекта.
Существующие корпуса изображают сплошными основными линиями (рисунок 1. а).
Проектируемые здания - сплошными тонкими линиями (рисунок 3. б).
Намеченное под снос здание - сплошными утолщенными линиями с крестиками (рисунок 1. в).

Рисунок 3 - Изображения зданий
Расположение видов, разрезов и сечений и их обозначение на строительных чертежах аналогично расположению на машиностроительных.
Внешний вид здания или сооружения называется фасадом.
На чертежах фасадов зданий наносят линии разбивочных осей колонн и стен.
Горизонтальный разрез здания, выполненный несколько выше уровня подоконника называется планом этажа здания.

Рисунок 4 - Чертеж здания
На рисунке 4 изображен план первого этажа. По плану этажей судят о размерах и расположении помещений, дверей, окон, толщине стен и других конструктивных элементах.
Стены, попавшие в разрез, обычно не заштриховывают. Контуры наружных и капитальных внутренних стен, и колонн, лежащих в секущей плоскости, изображают сплошной основной линией, а контуры межкомнатных перегородок, дверей и окон -сплошной тонкой линией.
При вычерчивании окон, дверей, ворот и других элементов зданий применяются условные стандартные графические обозначения (рисунок 5).

Рисунок 5 - Элементы строительных конструкций
Вычерчивание планов начинают с изображения разбивочных осей, которые определяют расположение стен и колонн в здании.
Расстояние между разбивочными осями применяются равные 200, 300, 500, 1200, 1500, 3000 и 6000 мм.
Обозначение разбивочных осей выносят на нижнюю и левую стороны плана.
Для выполнения плана цеха с размерами, по внутренним стенкам, 18000x30000 мм, вычерчивается прямоугольник в масштабе 1 : 100.
Вычерчиваются разбивочные оси на расстоянии 6000 мм. Вдоль длинной стороны цеха устанавливаются колонны, имеющие в поперечном сечении размер 400x400 мм для одноэтажного здания и 600x600 мм для многоэтажных. Колонны являются опорами для крыши, если здание одноэтажное и опорами для межэтажных перекрытий (рисунок 6) для многоэтажных зданий.

Рисунок 6 - План цеха
Толщина стен для одноэтажного здания в полтора кирпича, а многоэтажных в два. Размеры кирпича 250x125x65 мм.
Для нашего примера толщина стены будет равна 250 мм + 125 мм + 10 мм (на раствор между кирпичами) = 385 мм (рисунок 6) толщину перегородки внутри здания - 120 мм (0,5 кирпича).
Окна устанавливаются в пролетах между колонн. Так как мы вычерчиваем цех, то окна должны быть шириной 3 или 4,5 м.
Двери устанавливаются на усмотрение проектировщика (рисунок 6).
3 ЗАДАНИЕ
Выполнить план здания цеха, проставить размеры.
4 КОНТРОЛЬНЫЕ ВОПРОСЫ
1. Что такое план?
2. Какие масштабы применяются для выполнения строительных чертежей?
3. Какие условные стандартные графические обозначения строительных элементов вам известны?

Рисунок 7- Нанесение координационных осей

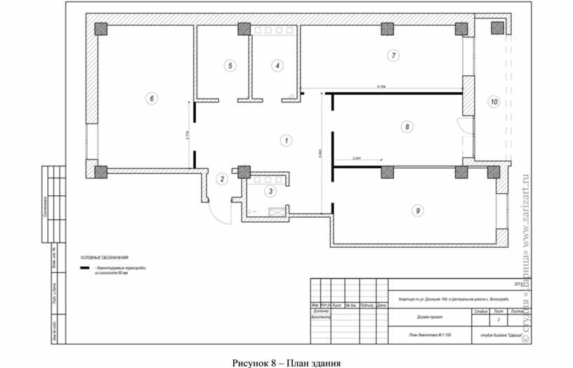
Рисунок 8 – План здания
Материалы на данной страницы взяты из открытых источников либо размещены пользователем в соответствии с договором-офертой сайта. Вы можете сообщить о нарушении.